Highlights
THE BOTTOM LINE
GPRS used 3D laser scanning and BIM modeling to help an architecture, planning, and design firm replace fragmented as-builts and complete a major revitalization at the Tufts University Data Center.
Industry
Data Centers
Service
Reality Capture
Location
Boston, Massachusetts
GPRS Project Manager Insight
Deliverables
Registered 3D Point Cloud Files (.RCS, .PCG), 3D Revit Model (.RVT), 2D CAD drawings (.DWG), On-Site Imagery, and .PDF files
PROJECT APPLICATION
GPRS Reality Capture at Tufts University Administration Building Data Center
ASK
Task
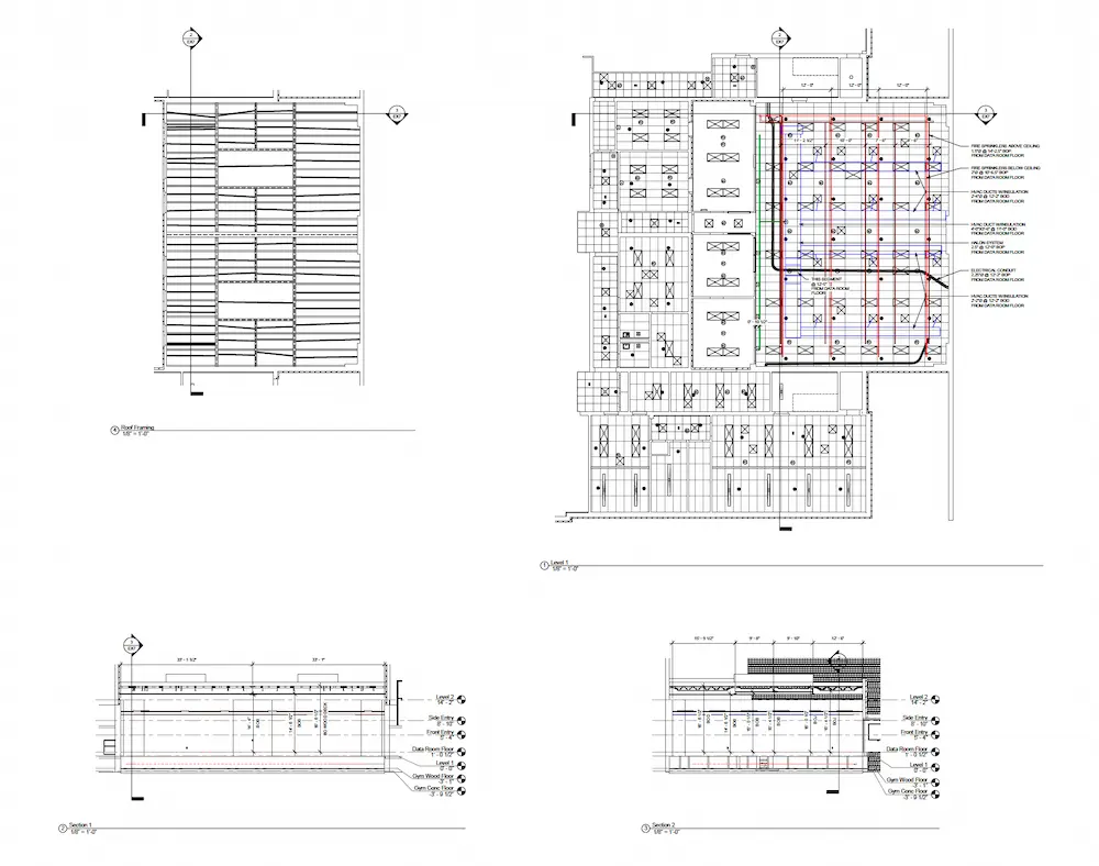
Complete interior and exterior 3D laser scans of the Tufts Administrative Building (TAB)’s Data Center to support a complete renovation, including mechanical and electrical system upgrades and the installation of new computer equipment
PROBLEM
- An architecture, planning, and design firm was tasked with performing a major revitalization of the university’s primary IT hub, which had not undergone a significant renovation since 1988
- Tufts needed to improve the facility without disrupting critical IT operations and services
- The data center occupied a former school gymnasium and had little to no as-built documentation
- They needed careful 3D laser scanning to avoid disrupting sensitive equipment, as hazards such as electromagnetic pulses and the complexity of the space made manual measurement methods nearly impossible
Solution
- GPRS Project Managers used LiDAR-based 3D laser scanners to capture approximately 5,000 s.f. of the data center, both exterior and interior
- They captured above-ceiling and below-floor conditions with 3D laser scanning, equipping the design team with the data needed to assess clearances, cable pathways, and cooling distribution
- GPRS’ CADD/BIM Team delivered point clouds, an architectural 3D Revit model, floor plans, reflected ceiling plans, a roof plan, exterior elevations, sections, and on-site color images
- The architectural floor plans incorporated electrical components such as switches and outlets, along with room information, including room numbers and Tufts room-use codes
Benefits
- The as-built deliverables provided an accurate existing conditions baseline that enabled the design team to plan renovations, coordinate system upgrades, and mitigate risk in a highly constrained environment
- The client replaced outdated equipment with higher-capacity, more energy-efficient technology to improve space use
- The TAB data center is now more resilient and energy-efficient, with the capacity to meet the university’s projected growth over the next 20 years
- 3D laser scanning was quick, safe, non-intrusive, and did not disrupt sensitive equipment or ongoing IT operations
CASE STUDY GALLERY
No items found.


.webp)
%20(1).gif)















.avif)